増築前の図面 ・杭・基礎伏図 ・床梁伏図 (RF, 10F, 9F, 8F, 7F, 6F, 5F, 4F, 3F, 2F, 1F, BF) ・軸組図(5通り, H通り) ・鉄骨梁伏図 (2F, 3F-RF) ・鉄骨軸組図(5通り, H通り) ・基礎断面図 ・柱リスト(1, 2, 3, 4) ・梁リスト(基礎梁リスト,大梁リスト(1, 2, 3, 4)) ・床リスト 増築後の図面は現在準備中です。しばらくお待ち下さい。
・杭・基礎伏図 ・床梁伏図 (RF, 10F, 9F, 8F, 7F, 6F, 5F, 4F, 3F, 2F, 1F, BF) ・軸組図(5通り, H通り) ・鉄骨梁伏図 (2F, 3F-RF) ・鉄骨軸組図(5通り, H通り) ・基礎断面図 ・柱リスト(1, 2, 3, 4) ・梁リスト(基礎梁リスト,大梁リスト(1, 2, 3, 4)) ・床リスト
・杭・基礎伏図
・床梁伏図 (RF, 10F, 9F, 8F, 7F, 6F, 5F, 4F, 3F, 2F, 1F, BF)
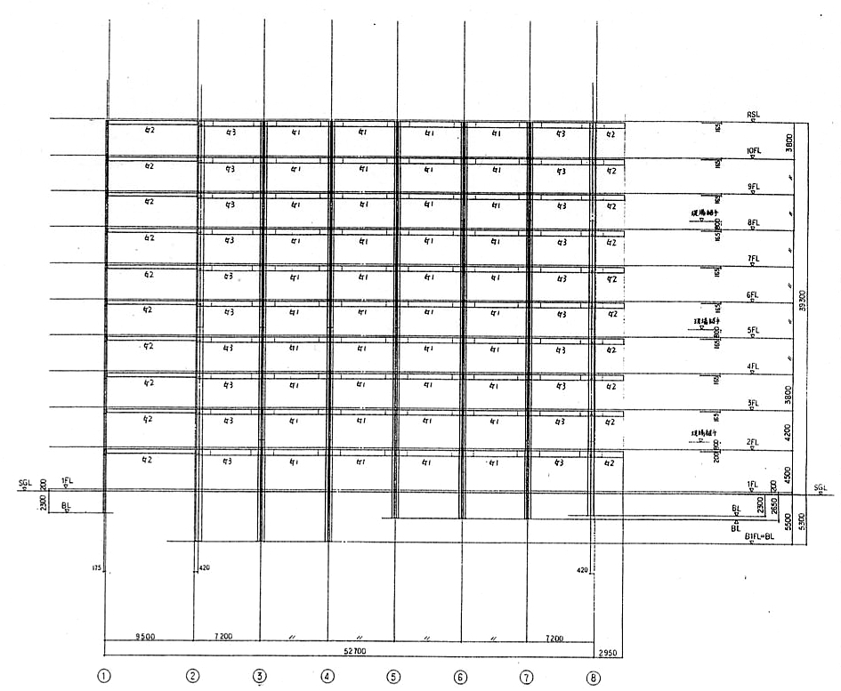
・軸組図(5通り, H通り)
・鉄骨梁伏図 (2F, 3F-RF)
・鉄骨軸組図(5通り, H通り)
・基礎断面図
・柱リスト(1, 2, 3, 4)
・梁リスト(基礎梁リスト,大梁リスト(1, 2, 3, 4))
・床リスト
増築後の図面は現在準備中です。しばらくお待ち下さい。